1308 Old Mill Creek Road SEWinnabow, NC 28479




Mortgage Calculator
Monthly Payment (Est.)
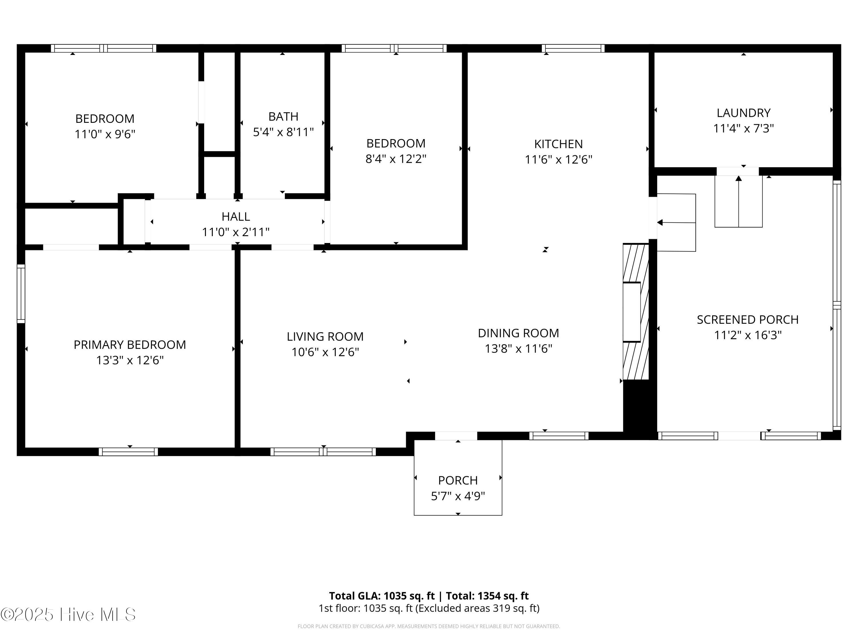
$1,307Discover affordable and stylish living just outside the hustle and bustle of Wilmington in this fully renovated single level brick ranch on over half an acre, offering peaceful surroundings with quick access to Brunswick County beaches and the everyday conveniences of Leland. Inside, you'll find a beautifully updated interior featuring all new flooring, tongue and groove ceilings, and an original brick fireplace that adds warmth and character. The showcase kitchen includes new stainless steel appliances, a modern tile backsplash, brand new cabinetry, and designer lighting. This refreshed home offers 3 bedrooms and 1 stunning updated bathroom, along with a spacious laundry room with cabinetry and plenty of room for a deep freezer, standing steamer, or added storage. Enjoy morning coffee or evening breezes on the screened porch overlooking the expansive side yard. Additional upgrades include a new HVAC system, making this move in ready home both comfortable and efficient. If you're looking for a charming renovated home on a generous lot with room to breathe just minutes from the coast, this Winnabow property is ready to welcome you home.
| a month ago | Price changed to $286,500 | |
| a month ago | Listing updated with changes from the MLS® | |
| 2 months ago | Listing first seen on site |
The data relating to real estate on this website comes in part from the Internet Data Exchange program of Hive MLS, and is updated as of 2026-02-05 10:21 AM UTC. All information is deemed reliable but not guaranteed and should be independently verified. All properties are subject to prior sale, change, or withdrawal. Neither listing broker(s) shall be responsible for any typographical errors, misinformation, or misprints, and shall be held totally harmless from any damages arising from reliance upon these data. Copyright 2026 Hive MLS




Did you know? You can invite friends and family to your search. They can join your search, rate and discuss listings with you.